1408 Benton StreetLakewood, CO 80214
Due to the health concerns created by Coronavirus we are offering personal 1-1 online video walkthough tours where possible.




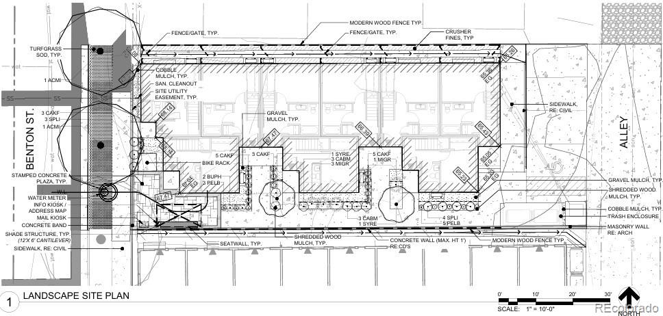
Take advantage of FULLY SHOVEL-READY building plans with permits and taps already paid. This offering includes nine thoughtfully designed, three-story townhomes—allowing construction to begin immediately. Each new townhome features multiple floor plans, with 2 bedrooms and 2 bathrooms, tall ceilings, strong curb appeal, and the ability to fence private yards. With approvals complete, these homes can be built and delivered just in time for Summer 2026. All of the time-consuming and costly “dirty work” has already been done. Lakewood’s current entitlement and approval process can take up to three years—this project allows you to bypass that timeline entirely, saving years of uncertainty, carrying costs, and risk. Located at 1408 Benton Street, the homes were intentionally designed to support the flexible living patterns of modern city dwellers. The stratified bedroom layout provides privacy when needed, while the open living spaces encourage connection and community. Outdoor living areas were incorporated to allow residents to fully enjoy Colorado’s climate. These uniquely designed residences appeal to a wide range of buyers and tenants—including new families, roommates, and live-work users—creating a broad and durable demand pool. Build now. Save three years. Start immediately.
| 2 months ago | Listing updated with changes from the MLS® | |
| 2 months ago | Price changed to $1,099,950 | |
| 6 months ago | Listing first seen on site |
The content relating to real estate for sale in this Web site comes in part from the Internet Data eXchange ("IDX") program of METROLIST, INC., DBA RECOLORADO real estate listings held by brokers other than Compass - Denver are marked with the IDX Logo. This information is being provided for the consumers' personal, non-commercial use and may not be used for any other purpose. All information subject to change and should be independently verified.

