1051 Independence StreetLakewood, CO 80215
Due to the health concerns created by Coronavirus we are offering personal 1-1 online video walkthough tours where possible.




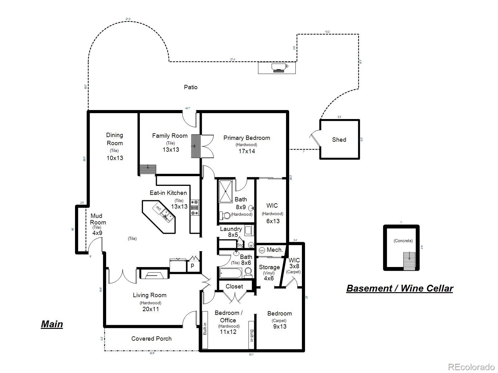
Rare Opportunity in Lakewood Heights – Nearly 4,000 SF of Modern Living on a Garden Oasis. Properties like this are rarely available—and this one truly must be seen to be believed. Nestled in the coveted Lakewood Heights neighborhood, this unique offering includes a 2,114 SF two bedroom + office main residence and a 1 bed, 2 bath + loft + home office accessory dwelling unit (ADU), totaling 3,671 square feet of beautifully updated, livable space. Perfect for a multi-generational household or income-producing setup, you can live in one home and work in and/or rent the other—long-term, mid-term, or short-term. The main home features a chef’s kitchen with custom Viking gas range, high-end appliances, a spacious island, granite countertops, a pantry and a stunning double-sided fireplace shared with the living room. The split floor plan places the primary bedroom, ensuite bath and walk-in closet in their own private wing of the home, and the secondary bedroom and office space are located in their own wing at the front of the home. The heart of the home--the kitchen, dining and gathering spaces --remain open-concept and ideal for entertaining. Step outside to one of several flagstone patios and enter the ADU, complete with one bedroom, two bathrooms, a flex space, and a loft—offering endless possibilities for use as a guest suite, studio, or home office. The real showstopper? A meticulously landscaped 0.72-acre lot, recently transformed into a gardener’s paradise. Enjoy a fully covered patio with built-in firepit, tranquil pond, hot tub, built-in outdoor kitchen, and lush perennials, trees and garden beds. It feels like a private retreat, yet you’re just two blocks from the W Line with direct access to downtown and just a few minutes drive from Bel Mar. Offering the perfect blend of character, charm, and modern updates, this property is an exceptional opportunity you don’t want to miss.
2 weeks ago | Listing updated with changes from the MLS® | |
2 weeks ago | Price changed to $1,119,000 | |
a month ago | Listing first seen on site |

The content relating to real estate for sale in this Web site comes in part from the Internet Data eXchange ("IDX") program of METROLIST, INC., DBA RECOLORADO real estate listings held by brokers other than Compass - Denver are marked with the IDX Logo. This information is being provided for the consumers' personal, non-commercial use and may not be used for any other purpose. All information subject to change and should be independently verified.
Did you know? You can invite friends and family to your search. They can join your search, rate and discuss listings with you.